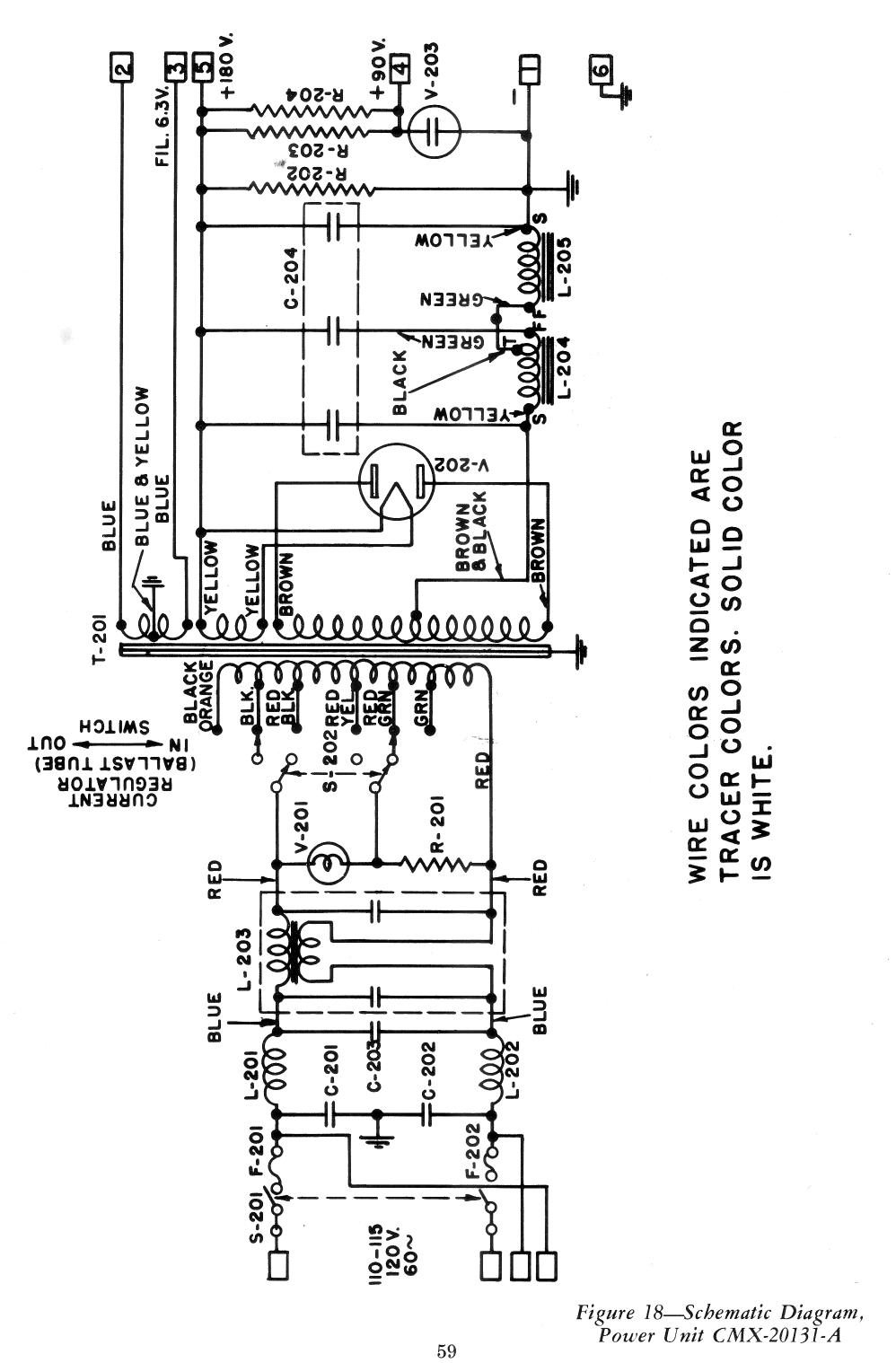
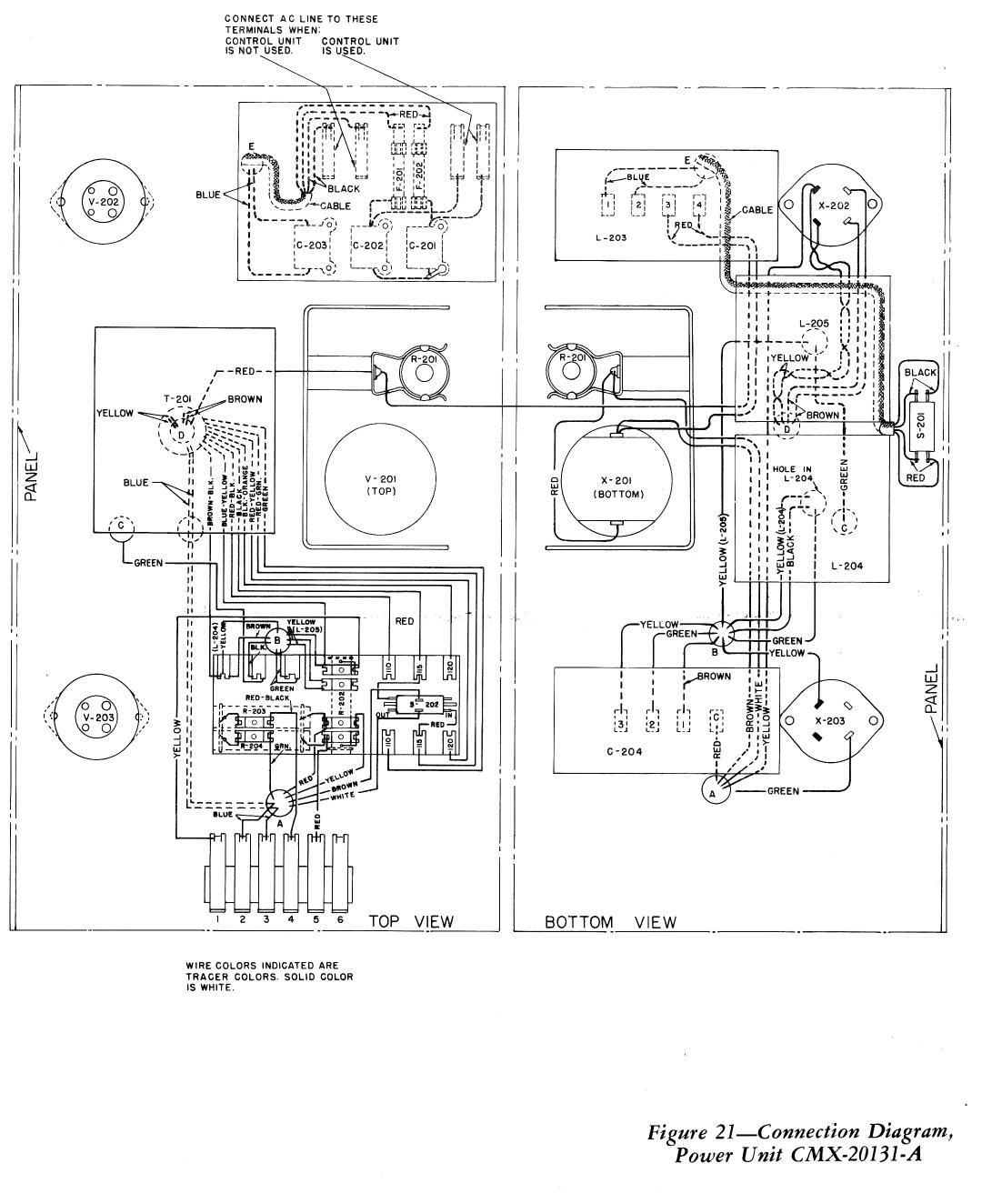
RAL-8 Power Supply Info (CMX-20131-A)

ral-ps-06.JPG (155090 bytes) ral-ps-07.JPG (145868 bytes)
ral-ps-01.JPG (152373 bytes) ral-ps-02.JPG (181629 bytes)
ral-ps-03.JPG (187900 bytes) ral-ps-04.JPG (175668 bytes)